













































In Januari 2026 gaan we starten met de ontwikkeling van 11 zeer luxe Wellness vakantiehuizen op RT13.
Op een nieuw aangelegd deel van het park raat 13 komen 11 Eco Wellness villa's in een ronde bij elkaar te staan en creëren hiermee een eigen Wellness gebied.
De Eco Wellness Villa's zijn uniek in ontwerp, uitvoering en ligging! Speciaal ontworpen voor Rhederlaagse Meren met veel luxe en comfort. De Eco Wellness Villa's zijn geheel van het gas af en worden gebouwd met hoogwaardige natuurlijke materialen, zoals gevels van verduurzaamd hout. Door de hoogwaardige isolatie is de woning zeer energie vriendelijk en dit wordt nog eens versterkt omdat ze zijn uitgevoerd met zonnepanelen en een accu pakket.
De Eco Wellness Villa 4 persoons is er al vanaf € 149.950,- excl. btw ( de btw kunt u terug vorderen indien u het vakantiehuis koopt voor verhuur doeleinden)
Er is keuze uit een 4, 6 en een 8 persoons uitvoering van de Eco Wellness Villa.
De Eco Wellness Villa is optioneel uit te voeren met een Hottube, Sauna, Buiten Douche, of Plunge Pool. (klein zwembad) Om er zo een ware wellness oase van te maken, waar rust, ontspanning en relaxen, samen komen voor de perfecte vakantie. Even ontsnappen aan het drukke alledaagse leven wordt hier het doel.
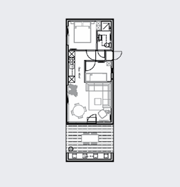
4 persoons:
Geniet van luxe en comfort op 45 m² met een overdekt terras van 12 m².
De Eco Wellness Villa's worden standaard uitgevoerd met een luxe en moderne keuken die van alle moderne gemakken is voorzien een vaatwasser, grote koelkast met vriesvak, inductie kookplaat met afzuigkap, combi-magnetron, afwasbak met kraan, groot werkblad en veel opberg-/ kastruimte.
Er zijn 2 ruime slaapkamers waarvan 1 ruime slaapkamer met een tweepersoonsbed (boxspring), inbouwkasten met schuifdeuren, tv-aansluiting en een dubbel draai-/ kiepkozijn. De tweede slaapkamer is voorzien van een stapelbed, kledingkast, draai-/kiepkozijn.
De luxe badkamer is voorzien van hygiënische en 100% waterdichte wandpanelen in tegellook van Fibo Trespo, inloopdouche, wastafel met meubel en spiegel, toilet, draai-/kiepkozijn en mechanische ventilatie.
De riante woonkamer heeft een open woon- en eetgedeelte, wat direct een warme en gezellige uitstraling geeft. Door gebruik van de vele en grote raampartijen is er sprake van een extra ruimtelijk gevoel en het zorgt voor veel lichtinval. Vanuit de woonkamer loopt u zo het overdekte terras op waar u heerlijk kunt genieten en even kunt ontsnappen aan het drukke alledaagse leven.
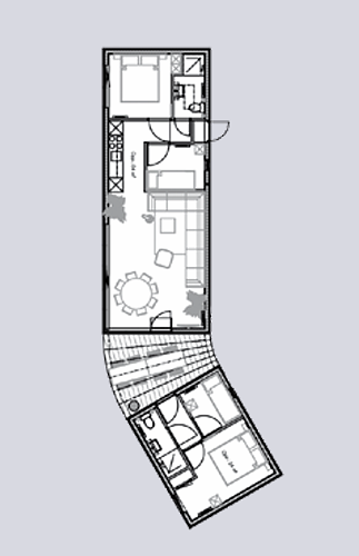
6 persoons:
Geniet van luxe en comfort op 54 m² met een overdekt terras van 12 m² en daaraan vast nog een extra verblijf met een slaapkamer en een badkamer van 16 m².
De Eco Wellness Villa's worden standaard uitgevoerd met een luxe en moderne keuken die van alle moderne gemakken is voorzien een vaatwasser, grote koelkast met vriesvak, inductie kookplaat met afzuigkap, combi-magnetron, afwasbak met kraan, groot werkblad en veel opberg-/ kastruimte.
Er zijn 2 ruime slaapkamers waarvan 1 ruime slaapkamer met een tweepersoonsbed (boxspring), inbouwkasten met schuifdeuren, tv-aansluiting en een dubbel draai-/ kiepkozijn. De tweede slaapkamer is voorzien van een stapelbed, kledingkast, draai-/kiepkozijn.
De luxe badkamer is voorzien van hygiënische en 100% waterdichte wandpanelen in tegellook van Fibo Trespo, inloopdouche, wastafel met meubel en spiegel, toilet, draai-/kiepkozijn en mechanische ventilatie.
De riante woonkamer heeft een open woon- en eetgedeelte, wat direct een warme en gezellige uitstraling geeft. Door gebruik van de vele en grote raampartijen is er sprake van een extra ruimtelijk gevoel en het zorgt voor veel lichtinval. Vanuit de woonkamer loopt u zo het overdekte terras op waar u heerlijk kunt genieten en even kunt ontsnappen aan het drukke alledaagse leven.
Aan het overdekt terras zit een extra verblijf aan vast met een eigen ruime slaapkamer en een eigen badkamer. Ideaal voor als bijvoorbeeld familie of vrienden mee gaan. Zo hebben zij een eigen lux verblijf met een eigen badkamer. Of maak van deze slaapkamer een wellness kamer met een sauna er in.
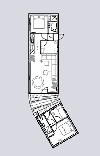
8 persoons:
Geniet van luxe en comfort op 54 m² met een overdekt terras van 12 m² en daaraan vast nog een extra verblijf met twee slaapkamers en een badkamer van 24 m².
De Eco Wellness Villa's worden standaard uitgevoerd met een luxe en moderne keuken die van alle moderne gemakken is voorzien een vaatwasser, grote koelkast met vriesvak, inductie kookplaat met afzuigkap, combi-magnetron, afwasbak met kraan, groot werkblad en veel opberg-/ kastruimte.
Er zijn 2 ruime slaapkamers waarvan 1 ruime slaapkamer met een tweepersoonsbed (boxspring), inbouwkasten met schuifdeuren, tv-aansluiting en een dubbel draai-/ kiepkozijn. De tweede slaapkamer is voorzien van een stapelbed, kledingkast, draai-/kiepkozijn.
De luxe badkamer is voorzien van hygiënische en 100% waterdichte wandpanelen in tegellook van Fibo Trespo, inloopdouche, wastafel met meubel en spiegel, toilet, draai-/kiepkozijn en mechanische ventilatie.
De riante woonkamer heeft een open woon- en eetgedeelte, wat direct een warme en gezellige uitstraling geeft. Door gebruik van de vele en grote raampartijen is er sprake van een extra ruimtelijk gevoel en het zorgt voor veel lichtinval. Vanuit de woonkamer loopt u zo het overdekte terras op waar u heerlijk kunt genieten en even kunt ontsnappen aan het drukke alledaagse leven.
Aan het overdekt terras zit een extra verblijf aan vast met twee ruime slaapkamers en een eigen badkamer. Ideaal voor als bijvoorbeeld familie of vrienden mee gaan. Zo hebben zij een eigen lux verblijf met een eigen badkamer. Of maak van deze slaapkamer een wellness kamer met een sauna er in.
DE INVESTERINGSMOGELIJKHEDEN
We hebben uitgebreide mogelijkheden voor u om te investeren in een Eco Wellness Villa op Rhederlaagse Meren. U heeft de kans om te investeren in een eigen vakantiehuis op een unieke locatie. Bijzondere beleving in een natuurlijke omgeving garandeert de investeringswaarde van de recreatievilla’s op het vakantiepark. Niet alleen nu maar ook op lange termijn. Uw vakantievilla wordt indien gewenst verhuurd door de eigen verhuurorganisatie van Rhederlaagse Meren. Voor de aankoop van een eigen vakantiehuis op Rhederlaagse Meren bieden wij u twee verschillende mogelijkheden. welke we graag persoonlijk met u bespreken, maar hieronder volgt alvast een korte uiteenzetting van de opties. In elk van de twee hieronder beschreven scenario’s gaan wij voor duidelijkheid, transparantie en gemak.
OPTIE A U kiest ervoor om een Eco Wellness Villa aan te schaffen op Rhederlaagse Meren en deze niet te verhuren, maar uitsluitend zelf te gebruiken om de vakanties, weekenden en vrije dagen lekker even te ontsnappen aan het drukke alledaagse leven. Even er uit en genieten van uw eigen plekje onder de zon.
OPTIE B De Eco Wellness Villa is zeer geschikt voor eigen gebruik, maar het is ook heel interessant voor verhuur doeleinden. Mocht u de Eco Wellness Villa zelf willen gebruiken en laten verhuren in de periodes dat u er zelf geen gebruik van maakt. Dan is het mogelijk om dit geheel te laten ver zorgen door het park. Het park regelt eigenlijk alles wat met de verhuur te maken heeft om uw Eco Wellness Villa zo goed mogelijk te verhuren.
Zo worden bijvoorbeeld de reclamecampagnes, boekingen, in-/uitchecken, borg, schoonmaak allemaal voor u geregeld vanuit het park. Zodat u er geen omkijken naar heeft. U krijgt dan een inlogcode zodat u kunt inloggen in het boekingssysteem van Rhederlaagse Meren. U komt dan op de eigenaars pagina van uw eigen Eco Wellness Villa. Op deze pagina kunt u ten alle tijden en overal ter wereld zelf mee kijken wanneer en voor welk bedrag u villa is verhuurd. Ook kunt u zien wat de recensies zijn van uw villa en waar de boeking vandaan is gekomen. Tevens kunt u via de kalender op de eigenaren pagina de villa blokkeren voor eigen gebruik en dat mag bij Rhederlaagse Meren zo vaak als dat u zelf maar wilt. Zelfs last minute!
Om dit alles uit u handen te nemen vraagt het park dan 25-30% van de verhuur opbrengst en de resterende 70-75% wordt dan ieder kwartaal netjes aan u uitbetaald.
Ook krijgt u een inlogcode zodat u kunt inloggen op onze website zodat u zelf altijd kunt meekijken wanner u huisje verhuurt is en voor hoeveel hij verhuurt is, hier kunt u dan ook gelijk de periodes blokkeren wanneer u zelf gebruik van het huisje wil maken.
VOORDELEN VOOR HET AANSCHAFFEN VAN EEN VAKANTIEHUIS OP RHEDERLAAGSE MEREN:
Op een Eco Wellness Villa is het mogelijk om de volledige 21% btw van de aankoop terug te vorderen van de Nederlandse Belastingdienst indien u het de villa koopt voor verhuur doeleinden.
UW VOORDELEN OP EEN RIJ •
100% eigenaar van het vakantie huis.
Vrij van overdrachtsbelasting.
Geniet van hoge verhuur opbrengsten.
Exclusieve, duurzame Eco Welness villa’s.
Gelegen in een bosrijke omgeving van de Veluwe Zoom en het Rhederlaagse Meer
Altijd een aanspreekpunt die voor u klaar staat en u het gehele traject begeleid.
Professionele verhuurorganisatie.
Investeren in een tastbaar, waardevast object biedt u, fysiek en financieel, een veilige haven.
U kunt profiteren van de groeiende vraag in vakantie in eigen land.
U hebt geen omkijken naar de verhuur, dat regelt Rhederlaagse Meren helemaal voor u.
Brengt u wel zelf huurders aan, dan zal dit voor u een nog aantrekkelijker rendement opleveren.
U kunt uw recreatiewoning desgewenst volledig stijlvol ingericht aanschaffen, volgens het turn-key principe.
Kortom: u kiest voor een tastbaar, veilig en aantrekkelijk beleggingsobject
Door de hoogwaardige isolatie en de zonnepanelen is de villa zeer energievriendelijk en geheel wintervast geïsoleerd. Voor de gevelbekleding is er gekozen voor ModiWood in plaats van een kunststof gevelbekleding. ModiWood is verduurzaamd hout die een natuurlijke uitstraling geeft aan de villa. Waardoor de villa helemaal op gaat in de natuurlijke omgeving van het park. Voor de badkamer wanden is er gekozen voor wandpanelen van Fibo Trespo. Deze wandpanelen in tegellook zijn ideaal voor in de badkamer. Ze zijn 100% waterdicht door het Aqualock-kliksysteem en zijn eenvoudig te reinigen maar ook antibacterieel en ongevoelig voor schimmels. Zoals jullie hier boven kunnen lezen proberen wij alles zo duurzaam mogelijk te houden voor onze villa’s met respect voor de natuur en onze mooie wereld.
Permanente bewoning is niet toegestaan!!!
Recreatiebemiddelaar
H. Maasmans
Tel: 0651100774
Mail: hein@recreatiegroepholland.nl
| Status | Te koop |
|---|---|
| Park | Rhederlaagse Meren |
| Aantal slaapkamers | 3 |
| Bouwjaar | 2026 |
| Huisnummer op park | RT 13 |
| Parkfaciliteiten | Buitenzwembad Restaurant Sportvelden Speeltuin(en) Indoor speeltuin Recreatieplas Golfbaan (omgeving) Aanlegsteiger Aan het water |
| Provincie | Gelderland |
| Vakantiehuis | Vanaf | € 149.950,- | excl. btw |
Bel met onze verkoopadviseur
Hein Maasmans: 06 51100774
We gebruiken cookies voor een optimale gebruikservaring, om gepersonaliseerde inhoud te bieden en ons verkeer te analyseren. Ook delen we informatie over uw gebruik van onze site met onze partners voor social media, adverteren en analyse. Deze partners kunnen deze gegevens combineren met andere informatie die u aan ze heeft verstrekt of die ze hebben verzameld op basis van uw gebruik van hun diensten. Bekijk voor meer informatie ons privacybeleid.